The Ivy Garden is a 75 acre residential development in Jinan, China. With several building prototypes already in place, KLA was charged with creating a sense of place for this resort style community designed and engineered by BDCL Development.

 

KLA produced a deliverables package that included design images, color-rendered schematic site plan graphics, sketches and written design narratives to aid in design communication with the client overseas. Internet video conference technology played a critical role in holding weekly meetings in the form of design charettes and critiques via webcam.

 

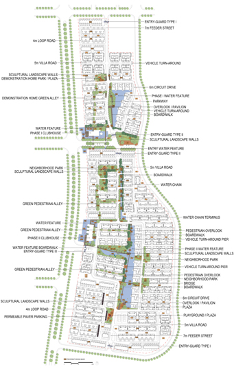
Major site program elements included gated entryways, greenways, playgrounds, bridges, landmark monuments, open spaces, parks, plazas and a north-south boardwalk parkway connection.

 

KLA assessed the engineering drawings for road alignment and made suggestions for a hierarchy of streets which included 4m loop roads, 5m villa roads, 6m circuit drives and 7m feeder streets.

 

 

 

 

 

 

 

 

Ivy Gardens

Landscape Planning Development

Jinan, China