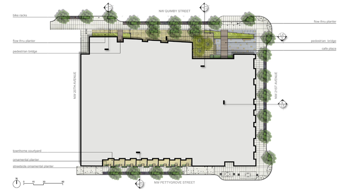
KLA is currently working to further boost the Conway Blocks in Northwest Portland. Originally a Tilt-Up warehouse on Quimby and 21st, Q21 will provide commercial, retail, and residential units in this new mixed-use development. KLA has taken on the design of the boardwalk plaza, stormwater mitigation, and on-slab residential amenity courtyard.

 

Completed in early 2017, Q21 is already a valuable asset to the Conway Blocks and Northwest Portland as a whole.

Q21, QUIMBY AND 21ST

Multi-Family, Mixed-Use development in Portland's Conway Blocks