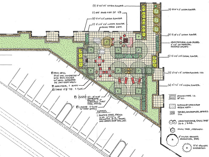
Adjacent to The Round South Plaza, at the site of the former Westgate Theater in Beaverton, KLA helped envision a new ‘urban village’, with vibrant streetscapes and cozy amenity terraces that feature lush plantings, BBQ’s, and communal fire pits. The work was achieved in tandem with Ankrom Moisan Architects, and includes new town homes, vibrant retail spaces, and pedestrian friendly sidewalks. Stormwater and eco-roof plantings collect and treat rainwater coming off of the new street and buildings.

 

Westgate was completed in the Summer of 2019.

THE RISE CENTRAL

Multi-family, Mixed-Use development

Beaverton, Oregon